Under Construction
Location
Powell, OH
Community
Harpers Pointe
School District
Olentangy
Price
$1,292,580



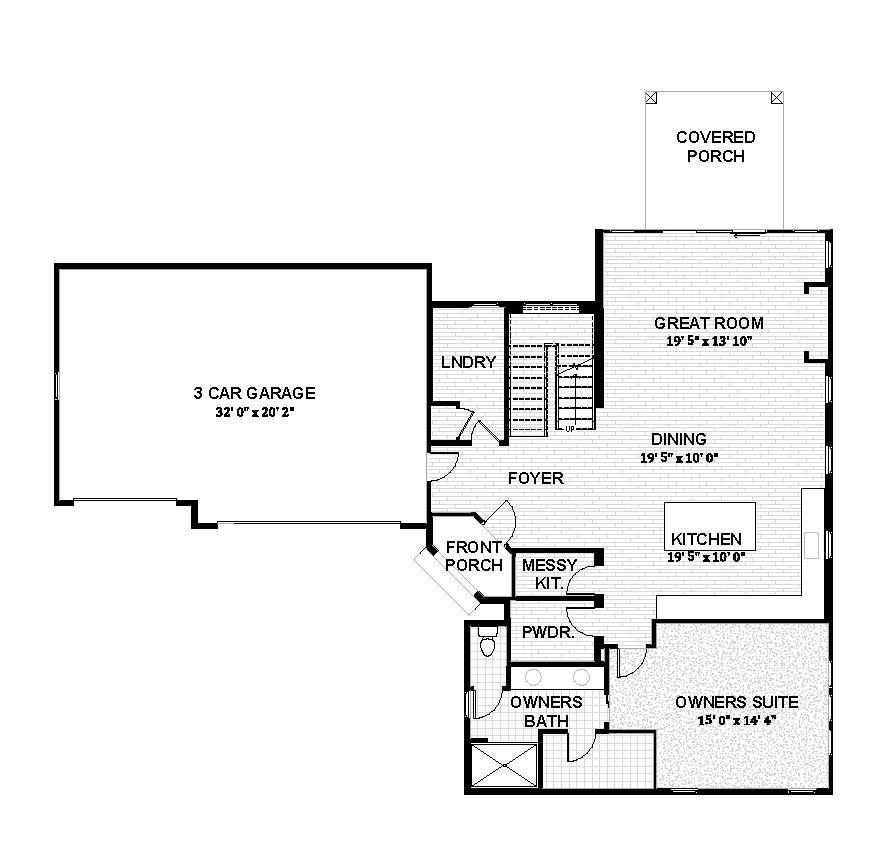
Sq. Footage
3,158



Bedrooms
3



Bathrooms
2 Full + 2 1/2



Garages
3



Study
No



Completion Date
Summer 2026
Floor Plans









Location
Community
School District
Price

















